Zum Inhalt springen
LaRo GmbH Logo LaRo GmbH Logo
  • Home
  • Energieberatung
  • Immobilien
    • Immobilien
    • Anlage- oder Steuersparmodell
  • Über mich

Familienheim in Nohfelden, Junges Einfamilienhaus mit Energieklasse A+

Familienheim in Nohfelden, Junges Einfamilienhaus mit Energieklasse A+
  • Speichern
+7
  • Speichern

Familienheim in Nohfelden, Junges Einfamilienhaus mit Energieklasse A+

  • 3 Schlafzimmer
  • 1 Badezimmer

Informationen

  • Datum hinzugefügt: Vor 7 Monaten hinzugefügt
  • Schlafzimmer: 3
  • Badezimmer: 1
  • Zimmer insgesamt: 5
  • Stockwerk: 2
  • Baujahr: 2018

Beschreibung

  • Beschreibung:

    Mikrolage:

    Das Einfamilienhaus in Nohfelden besticht durch seine ruhige und naturnahe Lage in einer familienfreundlichen Umgebung. Hier wird Nachbarschaft noch echt gelebt. Großzügige Wohnräume, eine moderne Ausstattung und ein pflegeleichtes Grundstück bieten viel Platz für individuelle Wohnträume. Dank der Nähe zu Schulen, Einkaufsmöglichkeiten und Freizeitangeboten vereint dieses Zuhause Wohnkomfort mit praktischer Infrastruktur. Die gute Verkehrsanbindung sorgt zudem für kurze Wege in die umliegenden Städte und macht das Haus zu einem idealen Wohnort für Familien, Berufspendler und Naturliebhaber.

    Objektbeschreibung

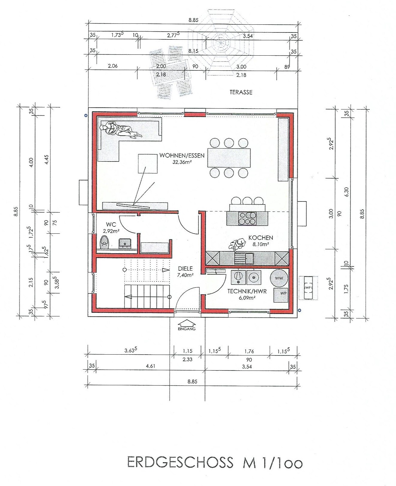
    Erdgeschoß:

    Beim Betreten des Hauses empfängt Sie der großzügige Dielenbereich, der eine praktische Garderobe für Sie und Ihre Gäste bereithält, sowie einer großzügigen Verstaumöglichkeit im seitlichen Bereich. Im weiteren Verlauf befindet sich ein Vorratsraum (ursprünglich als WC geplant, und damit auch als solches mit allen Anschlüssen vorbereitet). Gegenüber befindet sich der Technikraum, in dem sowohl Heizungstechnik als auch Waschmaschine und Trockner untergebracht sind. Am Ende des Flures erreichen Sie den großzügigen und hellen Wohnbereich mit integriertem Esszimmer und angrenzender Kochküche. Vom Wohn- und Esszimmer aus erreichen Sie den Außenbereich mit angelegter Terrasse.

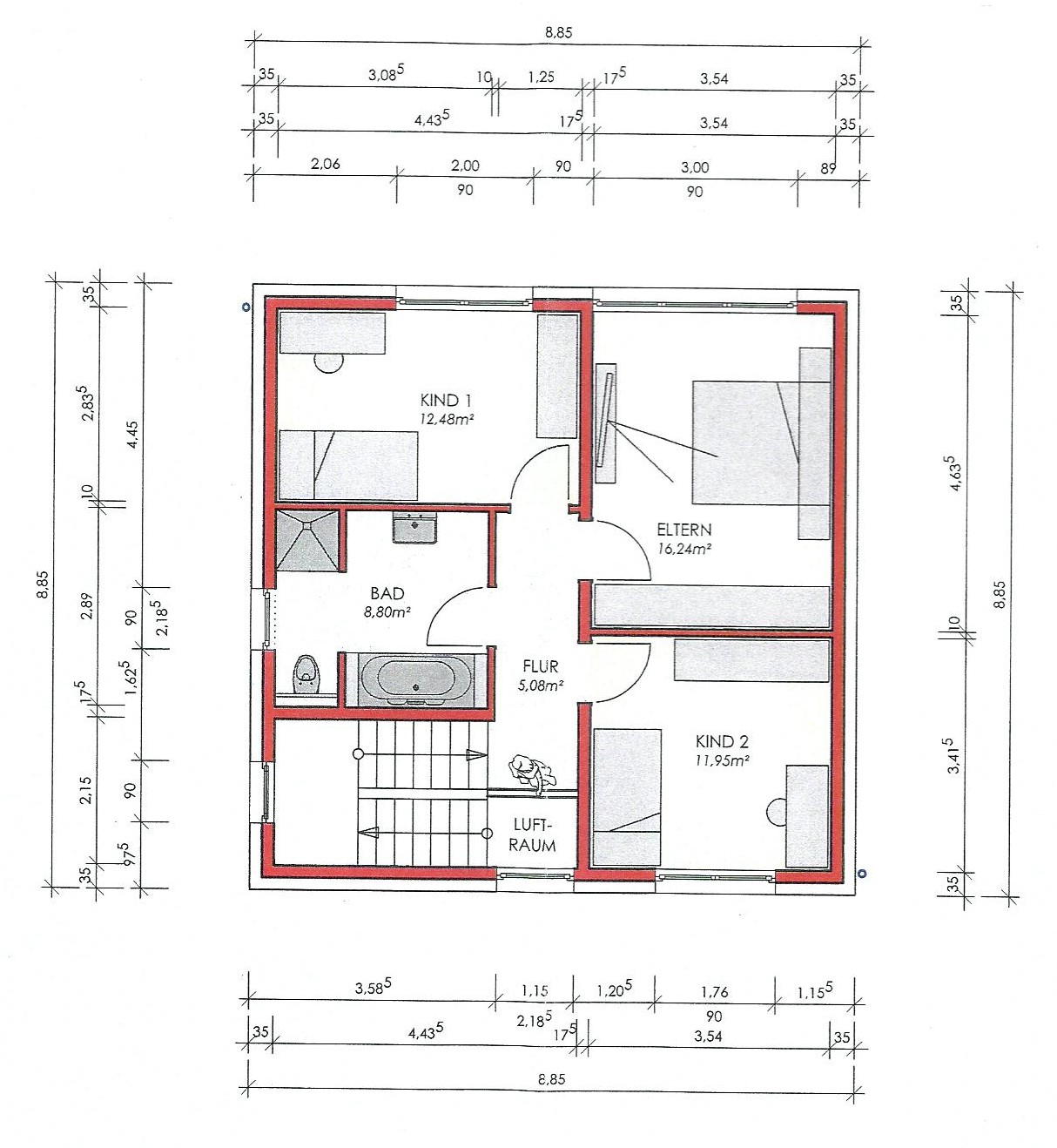
    Obergeschoß:

    Eine mit Fliesen verlegte Treppe führt vom EG hinauf in das OG. Hier werden Sie von einem hellen Flur empfangen, der Sie in das Bad und die 2 Schlafzimmer bzw. das Büro führt. Alle Räume sind hell und freundlich ausgestattet; hier können Sie Ihr Home Office einrichten, oder die Räume zusammen mit Ihren Kindern nutzen. Das Bad ist sowohl mit Badewanne, als auch mit barrierefreier Regendusche eingerichtet.

    Im OG hat man auch Zugang zum Dachboden, wo ausreichend Ablagefläche vorhanden ist.

    Alle Räume sind mit hochwertigen Fliesen versehen. Für die wohlige Wärme sorgt die Fußbodenheizung, die durch eine Wärmepumpe versorgt wird.

    Durch den angewandten Baustil, die verwendeten Baustoffe und die perfekte Dämmung von Bodenplatte, Dach und Außenwänden in Kombination mit der energiesparenden Wärmepumpe finden Sie hier ein Haus vor, das die höchste Energiestufe A+ erreicht.

    Außenbereich:

    Hier finden Sie eine großzügige Terrasse (ca. 18m²), die zum Verweilen einlädt.

    Der vorhandene Garten bietet zudem genügend Platz für das Anlegen eines Nutz- und Gemüsegartens. Das gesamte Grundstück ist naturell gehalten und mit Wildpflanzen versehen. Hier kann man nach Herzenslust weiter gestalten und sich kreativ einbringen.

    Garage:

    Neben der Immobilie stehen 2 massive Fertiggaragen zum Abstellen Ihrer Fahrzeuge und/oder Fahrräder zur Verfügung. Vor dem Haus befindet sich eine zusätzliche Parkmöglichkeit für Ihr Auto.

    Ausstattung:

    Die Immobilie ist komplett ausgestattet mit hochwertigen Möbeln in allen Wohnräumen, Bad, Küche und Esszimmer. Die aktuelle Ausstattung des Hauses kann auf Wunsch größtenteils mit veräußert werden. Über den Preis der Ausstattung kann man sich bei Interesse zeitnah abstimmen.

    Lage:

    Die Gemeinde Nohfelden bietet eine ausgezeichnete Infrastruktur für Familien und Berufstätige. Eine neu errichtete Kita in Bosen sowie Grundschulen in Sötern und Gonnesweiler, sorgen für eine gute frühkindliche und schulische Bildung. Die weiterführende Gemeinschaftsschule mit gymnasialem Zweig in Türkismühle erweitert das Bildungsangebot.

    Zahlreiche gastronomische Betriebe, darunter Hotels, Restaurants, Cafés, eine Vinothek, eine Eisdiele sowie der nahegelegene Center Park Bostalsee, laden zum Verweilen ein. Ergänzt wird das Angebot durch vielseitige Dienstleister wie Handwerksbetriebe, ein Industriegebiet, den Hallenspielplatz Bosiland, Bäckereien, Friseure, Fußpflegepraxen, ein Pflegeheim und eine Gärtnerei. Ein reges Vereinsleben, zwei Kirchen und Einkaufsmöglichkeiten in Sötern und Türkismühle machen Bosen besonders attraktiv für Familien und Pendler. Zudem bietet der öffentliche Nahverkehr mit mehreren Buslinien eine gute Anbindung an die regionalen Zentren sowie den Bahnhof Türkismühle.

    Leben am Bostalsee – Wohnen, wo andere Urlaub machen

    Die Immobilie befindet sich in der Gemeinde Nohfelden, im Ortsteil Bosen, nur etwa 1100 Meter vom Bostalsee entfernt. Der Bostalsee ist der größte Freizeitsee im Südwesten Deutschlands und ein beliebtes Ausflugsziel für Wassersportler, Naturliebhaber und Touristen. Der Stausee ist bekannt für sein breites Freizeitangebot mit Segeln, Surfen, Schwimmen, Radfahren und Wandern. Die Region gehört zum Naturpark Saar-Hunsrück und bietet eine ruhige, landschaftlich reizvolle Umgebung.

    Bosen zählt etwa 1.400 Einwohner und besticht durch seine attraktive Wohnlage mit einer hervorragenden Verkehrsanbindung an die Kreisstädte St. Wendel, Birkenfeld, sowie an die Autobahnen A1 und A62 Richtung Trier, Saarbrücken, und Luxemburg. Die perfekte Kombination aus Natur, Erholung und guter Infrastruktur macht diesen Ort zu einem beliebten Wohngebiet.

    Entfernung zu:

    ·       Bäckerei: ca. 0.7 km
    ·       Bushaltestelle: ca.  0,3 km
    ·       Einkaufcenter: ca. 4 km
    ·       Ortsmitte: ca.  0,4 km
    ·       Kindergarten: ca. 0.7 km
    ·       Schule: ca.  4 km
    ·       Krankenhaus ca.  16 km
    ·       Birkenfeld ca. 16 km
    ·       St. Wendel ca.  16 km
    ·       Trier ca.  55 km
    ·       Saarbrücken ca.  52 km
    ·       Luxemburg ca. 103 km

    Sonstiges:

    Provision:

    Die Maklerprovision in Höhe 3,57% inkl. 19 % MwSt. vom Kaufpreis ist mit Abschluss des Kaufvertrages verdient und fällig. Der Makler ist auch für den Verkäufer provisionspflichtig tätig.

    Hinweise:

    Wir möchten darauf hinweisen, dass sämtliche Objektinformationen, Unterlagen, Pläne, etc. unverbindlich sind und ausschließlich vom Verkäufer oder Eigentümer stammen, bzw. auf den Angaben unserer Auftraggeber beruhen. Wir übernehmen keine Gewähr für die Vollständigkeit, Richtigkeit und Aktualität dieser Daten. Es obliegt daher unseren Kunden, die darin enthaltenen Objektinformationen und Angaben auf ihre Richtigkeit hin zu überprüfen. Bitte beachten Sie, dass eine Weitergabe des Exposés an Dritte nur mit ausdrücklicher Zustimmung des Anbieters gestattet ist.

    Gemäß den Vorgaben des Geldwäschegesetzes (GWG) sind wir verpflichtet, bei der ersten Kontaktaufnahme Ihre vollständigen Kontaktdaten zu erfassen. Daher können wir nur Anfragen bearbeiten, die Ihren vollständigen Namen, Ihre Anschrift sowie Ihre Telefonnummer beinhalten. Wir danken Ihnen für Ihr Verständnis.

    Mit Ihrer ersten Kontaktaufnahme – sollte diese per Email oder persönlich erfolgen - erhalten Sie außerdem von uns alle erforderlichen Informationen zu Ihrem gesetzlichen Widerrufsrecht und zum Datenschutz.

    Nach Eingang Ihrer schriftlichen Anfrage setzen wir uns zeitnah mit Ihnen in Verbindung, um die weitere Vorgehensweise zu besprechen.

    Auf Wunsch unterbreitet Ihnen unser Finanzierungsspezialisten ein kostenloses, auf Sie abgestimmtes Finanzierungskonzept, das Ihre Lebenssituation widerspiegelt.

    Überzeugen Sie sich selbst von diesem einzigartigen Angebot und vereinbaren Sie noch heute einen Besichtigungstermin.

    Preis VB:

     

Dokumente

  • Dokumente:
    Energieausweis_Bild.jpg 55,47 kB

Grundrisse

  • Grundrisse:

Senden Sie mir eine Anfrage zu diesem Haus.

Ich stimme dem Nutzungsbedingungen und Datenschutzpolitik zu
Powered by Estatik
Coaching_Admin2025-05-21T15:57:49+00:00März 25, 2025|

E-Mail: info@larogmbh.de

Telefon: 0151 – 521 950 02

Datenschutz – Impressum

Page load link

Kontakt

Kontakt

Datenschutz *
Vielen Dank. Ihre Nachricht wurde versendet.
Die Nachricht konnte wegen eines Fehlers nicht übermittelt werden. Bitte versuchen Sie es später nochmal.

Einloggen oder Registrieren

um deine Lieblingshäuser und mehr zu speichern

Einloggen oder Registrieren

um deine Lieblingshäuser und mehr zu speichern

Alle Login Optionen
Passwort vergessen?

Reset password

Geben Sie Ihre E-Mail-Adresse ein und wir senden Ihnen einen Link zum Ändern Ihres Passworts.

Zurück zum Login
Powered by Estatik
Nach oben